
Entre intimité et convivialité !
Entre intimité et convivialité !
Restructuration et rénovation d'une maison de vacance au Cap-ferret.
-
-
La façade est enduite avec un crépis épais et le lambris vernis vient souligner le traitement des pleins et des vides sur la façade principale.
-
La volumétrie générale de la maison avec ses pentes de toitures inversées est conservée. Le lambris est repeint en gris, et les menuiseries sont remplacées et équipées d'un double vitrage pour l'amélioration du confort des occupants.
-
La maison a fait l'objet de deux extensions dans le temps : le garage devenu chambre et la véranda.
Ces évolutions n'ont jamais pris en compte les aménagements existants de la maison, ce qui a conduit à sa déstructuration.
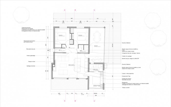
Le projet tend à redéfinir la place de chaque espace et sa relation aux autres. Une attention particulière a été portée aux circulations, à la distribution. -
Etat des lieux : plan et reportage photographique
-
Cette maison de vacances peut accueillir trois couples en même temps, ce qui impliquait nécessairement un travail sur les espaces, afin de permettre à la fois d'avoir des zones de convivialité et des zones d'intimité indispensables à la vie en collectivité.
-
La cuisine est ouverte sur le séjour, ce qui permet d'augmenter le volume du séjour et de repenser intégralement la distribution et la hiérarchisation des espaces.
-
Vues des aménagements projetés
-
Les extérieurs sont enrichis par la création d'une grande terrasse en caillebotis bois ouverte sur le Sud et l'Ouest.
La maison existante est une maison typique des années 70 de plein pieds.