Menu
Un projet réalisé par :Florian JOVET ARCHITECTE  Architecte à Bordeaux
Florian JOVET ARCHITECTE
Accueil Projets Immeuble CP

Rénovation d'un immeuble pierre d'habitation individuel en plein coeur de bordeaux

Immeuble CP

Rénovation d'un immeuble pierre d'habitation individuel en plein coeur de bordeaux.
Le projet propose une redistribution des volumes avec un grand espace de séjour décloisonné, des espaces nuits optimisés avec dressing et salle d'eau attenante.
L'amélioration énergétique a été un élément essentiel du projet, avec la mise en place d'isolants biosourcés et d'une chaudière à condensation.

  • Immeuble CP : EDL RDC

    Plan état des lieux Rdc

  • Immeuble CP : EDL R+1

    Plan état des lieux R+1

  • Immeuble CP : EDL R+2

    Plan état des lieux R+2

  • Immeuble CP : EDL R+3

    Plan état des lieux R+3

  • Immeuble CP : Façade EDL

    Façade état des lieux

  • Immeuble CP : EDL COUPE

    Cou état des lieux

  • Immeuble CP : PRO RDC

    Plan projet RDC

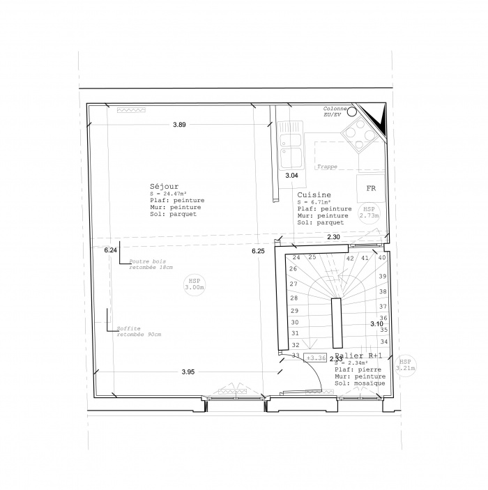
  • Immeuble CP : PRO R+1

    Plan projet R+1

  • Immeuble CP : PRO R+2

    Plan projet R+2

  • Immeuble CP : PRO R+3

    Plan projet R+3

  • Immeuble CP : PRO COUPE

    Coupe projet

Trouvez un architecte pour votre projet

Protection de vos données personnelles

Depuis toujours, architectes-france.com ne transfère aucune donnée personnelle à d'autres acteurs que ceux directement concernés par le projet (architectes, architectes d'intérieur...) et qui appartiennent à son réseau. Nos listes ne sont jamais transmises ou vendues à des partenaires extérieurs, même si ceux-ci appartiennent au domaine de la construction.
Toute modification dans ce domaine ne serait effectuée qu'avec votre consentement.

Je consens à ce que mes données personnelles soient collectées pour permettre à architectes-france de transférer votre projet aux architectes. Seul Architectes-france, ses équipes internes et la maitrise d'oeuvre concernée par le projet y ont accès. Aucune transmission de données à des tiers à l'exclusion de ceux décrits ci dessus n'est réalisée.

Mes données téléphoniques seront uniquement utilisées par Architectes-france.com et les architectes de notre réseau dans le cadre de la qualification et du suivi de mon projet.

Les données sont conservées pendant une durée de 18 mois courant à partir des derniers contacts effectifs entre architectes-france et vous ou architectes-france et un membre de la maitrise d'oeuvre en rapport avec ce projet et qui serait en relation avec architectes-france.

Conformément à la loi « informatique et libertés », vous pouvez exercer votre droit d'accès aux données vous concernant et les faire rectifier en contactant : Architectes-france, 23 avenue du Mirail - parc du Mirail - 33370 Artigues-près Bordeaux. Tél. 05.47.74.51.01 - contact@architectes-france.com

Trouvez un architecte pour votre projet

Protection de vos données personnelles

Depuis toujours, architectes-france.com ne transfère aucune donnée personnelle à d'autres acteurs que ceux directement concernés par le projet (architectes, architectes d'intérieur...) et qui appartiennent à son réseau. Nos listes ne sont jamais transmises ou vendues à des partenaires extérieurs, même si ceux-ci appartiennent au domaine de la construction.
Toute modification dans ce domaine ne serait effectuée qu'avec votre consentement.

Je consens à ce que mes données personnelles soient collectées pour permettre à architectes-france de transférer votre projet aux architectes. Seul Architectes-france, ses équipes internes et la maitrise d'oeuvre concernée par le projet y ont accès. Aucune transmission de données à des tiers à l'exclusion de ceux décrits ci dessus n'est réalisée.

Mes données téléphoniques seront uniquement utilisées par Architectes-france.com et les architectes de notre réseau dans le cadre de la qualification et du suivi de mon projet.

Les données sont conservées pendant une durée de 18 mois courant à partir des derniers contacts effectifs entre architectes-france et vous ou architectes-france et un membre de la maitrise d'oeuvre en rapport avec ce projet et qui serait en relation avec architectes-france.

Conformément à la loi « informatique et libertés », vous pouvez exercer votre droit d'accès aux données vous concernant et les faire rectifier en contactant : Architectes-france, 23 avenue du Mirail - parc du Mirail - 33370 Artigues-près Bordeaux. Tél. 05.47.74.51.01 - contact@architectes-france.com