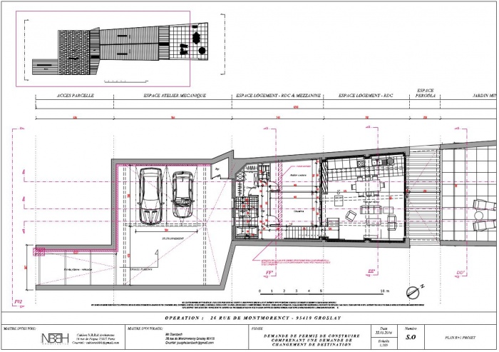
Il s'agissait de réhabiliter un ancien garage en loft.
LE PROJET
Concernant les éléments visibles depuis les parcelles mitoyennes et/ou depuis la voie publique des modifications seront apportées, que ce soit côté rue qu'au niveau du fond de la parcelle.
La façade sur rue sera entièrement rénovée / la porte du garage existante sera donc entièrement décapée pour une remise en peinture. Nous procèderons à la réalisation de joints creux afin de donner à cette façade un aspect maçonné.
La porte sera peinte avec un RAL 7035 (gris clair) et sera traitée avec une couche d'imperméabilisation. Une tôle thermo laqué RAL 7035 sera réalisée sur mesure afin de venir remplacer l'enseigne de l'ancien garage qui sera quant à elle déposée.
La façade en fond de parcelle sera plus significativement modifiée. Les deux tiers de la section de toiture acier sera déposé afin de laisser un espace ouvert qui sera traité par un revêtement de sol minéral et comportera également des végétaux en pots. Le tiers restant sera traité en terrasse couverte. Les murs périmétriques seront déposés sur la même section que la toiture acier. Une clôture occultante de type Naas gris anthracite sera prévue afin de matérialiser la limite séparative. Les murs seront traités avec un ravalement à la chaux de type Saint Astier n° 92 ou n° 20.
La façade sera traitée presque intégralement en vitrage. La menuiserie triangulaire destinée au pignon ne permettra pas de vue directe sur les voisins, car il s'agira du séjour en double hauteur. Les menuiseries seront des menuiseries en aluminium RAL 7021 (type atelier d'artiste) en double vitrage. Au RdC coté terrasse seront prévus de vitrages anti effraction.
De par la création de cette terrasse et comme évoqué nous déposerons les murs en fond de parcelle ce qui impliquera une modification de la vue depuis la parcelle voisine. Cependant aucune vue ne sera possible depuis les mitoyens.
Les intérieurs seront traités en logement de type loft et comprendront une mezzanine destinée à accueillir les espaces privés et/ou de nuit. Le rez-de-chaussée sera composé d'un salon d'une cuisine ouverte, d'un cellier, d'un local technique ainsi que d'un WC. La toiture sera isolée par l'intérieur.
Certains murs seront traités en parement brique type brique new yorkaise. Les poutres et les ossatures métalliques seront traitées et laissées en évidence afin de préserver l'ambiance industrielle du lieu.
Le premier volume après le passage de l'entrée sera quant à lui et comme évoqué précédemment traité en atelier mécanique pour des activités non professionnelles et par conséquent ne subira aucun aménagement particulier. Uniquement la mise en place d'un établi et d'un plan de travail.
Les toitures seront révisées et les châssis de toit existants seront déposés et remplacés par une reprise de toiture avec des tuiles dito existant. Une sortie pour l'extraction du poêle à bois sera réalisée ainsi que des chatières nécessaires à la ventilation des canalisations. Une sortie sera également prévue pour la sortie de la hotte, car celle-ci sera à extraction directe.
Un diagnostic amiante a été effectué et aucune trace d'amiante n'a été détectée sur site.
