
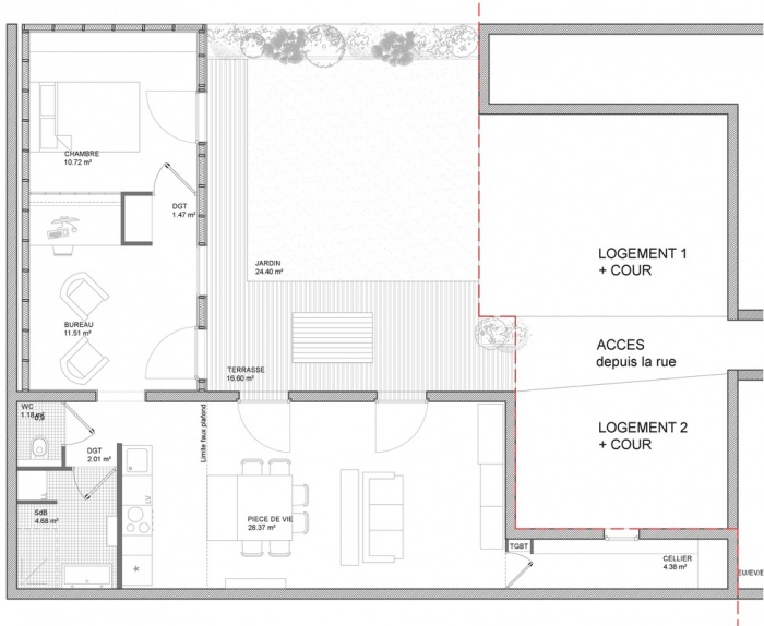
Rénovation de l'existant et transformation du chais en habitation.

Le projet s'inscrit en fond de parcelle et s'articule autour d'un jardin type patio.
Le bâtiment en forme de L permet à l'ensemble des pièces de s'ouvrir sur la terrasse et le jardin. La façade du chais a été recouverte d'un bardage bois à claire-voie.
La hauteur sous toiture à été récupérée dans la partie habitation afin de donner du volume à la pièce de vie principale. L'ensemble des points d'eau (cuisine, sanitaires et salle d'eau) on été regroupés en une localisation unique.
-
-
-
-
-
-
Modélisation d'avant projet
-
Modélisation d'avant projet
Modélisation d'avant projet