
Réaménagement d'une maison d'habitation
Comment transformer et rendre plus contemporaine une maison des années 70?
Objectifs du projet : Réaménagement, recherche de lumière naturelle et mise en place d'une isolation (confort d'été + hiver)
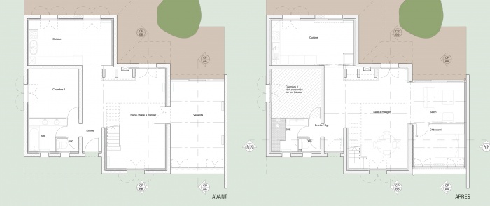
                        Le projet consistait à réaménager le rez-de-chaussée d'une maison d'habitation. La véranda existante a été reprise dans son intégralité et connectée à la maison existante afin d'agrandir l'espace de vie. Une chambre supplémentaire a été créée. 
L'escalier a été changé et repositionné pour une meilleure disposition de l'espace. 
L'objectif majeur de ce projet était d'apporter un maximum de lumière naturelle dans les espaces de vie tout en évitant la surchauffe en été.
- 
                                    
                                                                             - 
                                    
                                                                            Customisation de la cheminée existante.
 - 
                                    
                                                                            Accès à l'ancienne véranda et agrandissement du séjour.
 - 
                                    
                                                                            Vue du séjour.
 - 
                                    
                                                                            Détail escalier
 - 
                                    
                                                                            Vue vers séjour depuis Mezzanine
 - 
                                    
                                                                            Ouverture vers ancienne véranda
 - 
                                    
                                                                            Connexion entre ancienne véranda et espace extérieur : les limites entre intérieur et extérieur disparaissent.
 - 
                                    
                                                                            Plans avant - après
 
					
Transformation et déplacement de l'escalier qui mène à la mezzanine.