Menu
Un projet réalisé par :MARTINS ARCHITECTURE  Architecte à Bordeaux

Surélévation d'une échoppe

 Bordeaux - 33
MARTINS ARCHITECTURE
Accueil Projets Surélévation d'une échoppe

Le projet consiste en la réhabilitation d'une échoppe bordelaise comprenant le réaménagement intérieur de l'ensemble du rez-de-chaussée, et la création d’un niveau supérieur au dessus de l’échoppe existante.
Localisation : Bordeaux

Surélévation d'une échoppe
  • Surélévation d'une échoppe : image_projet_mini_93370
  • Surélévation d'une échoppe : 801b010aa702351d9fc77db91c88c296 1920
  • Surélévation d'une échoppe : 8577191941de24ac1bf35ebe9e8a929c 1920
  • Surélévation d'une échoppe : 12f6c42d61841554ba9bef528227e9f2 1920
  • Surélévation d'une échoppe : 8121c590eddacde45ff411c3fee32aac 1920
  • Surélévation d'une échoppe : 544decdf7797feb1c6f8eff67cc79307 1920
  • Surélévation d'une échoppe : 88ca901666d1d5eb6bb53e184a870bd9 1920
  • Surélévation d'une échoppe : image_projet_mini_26789

    Plan de l'existant

  • Surélévation d'une échoppe : 01 Plan Rdc copie

    Plan RDC du projet

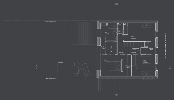
  • Surélévation d'une échoppe : 01 Plan R+1 copie

    Plan étage du projet

  • Surélévation d'une échoppe : image_projet_mini_26816

    Insertion du projet dans la rue.

  • Surélévation d'une échoppe : 05 vue facade jardin

    Façade sur jardin, Travail important sur le calepinage entre la façade et les ouverture.

  • Surélévation d'une échoppe : P1010009.JPG

    Maison existante

  • Surélévation d'une échoppe : SNC00298

    Existant sur le jardin.

  • Surélévation d'une échoppe : 01 travaux copie

    Beaucoup de démolitions ont été pratiquées pour retrouver un volume simple et réaménageable. Une grande ouverture est crée sur le jardin et il est mis en place un plancher hourdis pour l'étage.

  • Surélévation d'une échoppe : charpente copie
  • Surélévation d'une échoppe : divers etapes copie

    Quelques photographies de l'avancement des travaux intérieurs.

  • Surélévation d'une échoppe : P1100688.JPG

    La cuisine en cours de pose

  • Surélévation d'une échoppe : P1100695.JPG

    Le peintre arrive sur le chantier

  • Surélévation d'une échoppe : P1100535.JPG

    Vue sur le garde corps camouflé par le peintre

  • Surélévation d'une échoppe : évolution facades 1 copie
  • Surélévation d'une échoppe : évolution facades 2 copie
  • Surélévation d'une échoppe : évolution facades 3 copie

    Voici une série d’image pour comprendre l’évolution des deux façades, l’une sur la rue l’autre sur jardin. Deux langages ont été mis en œuvre : une façade minérale identique à l’existant pour la rue, une façade plus contemporaine en panneaux bois composite coté jardin.

  • Surélévation d'une échoppe : image_projet_mini_35536

    Même les pignons ont été traités

Trouvez un architecte pour votre projet

Protection de vos données personnelles

Depuis toujours, architectes-france.com ne transfère aucune donnée personnelle à d'autres acteurs que ceux directement concernés par le projet (architectes, architectes d'intérieur...) et qui appartiennent à son réseau. Nos listes ne sont jamais transmises ou vendues à des partenaires extérieurs, même si ceux-ci appartiennent au domaine de la construction.
Toute modification dans ce domaine ne serait effectuée qu'avec votre consentement.

Je consens à ce que mes données personnelles soient collectées pour permettre à architectes-france de transférer votre projet aux architectes. Seul Architectes-france, ses équipes internes et la maitrise d'oeuvre concernée par le projet y ont accès. Aucune transmission de données à des tiers à l'exclusion de ceux décrits ci dessus n'est réalisée.

Mes données téléphoniques seront uniquement utilisées par Architectes-france.com et les architectes de notre réseau dans le cadre de la qualification et du suivi de mon projet.

Les données sont conservées pendant une durée de 18 mois courant à partir des derniers contacts effectifs entre architectes-france et vous ou architectes-france et un membre de la maitrise d'oeuvre en rapport avec ce projet et qui serait en relation avec architectes-france.

Conformément à la loi « informatique et libertés », vous pouvez exercer votre droit d'accès aux données vous concernant et les faire rectifier en contactant : Architectes-france, 23 avenue du Mirail - parc du Mirail - 33370 Artigues-près Bordeaux. Tél. 05.47.74.51.01 - contact@architectes-france.com

Trouvez un architecte pour votre projet

Protection de vos données personnelles

Depuis toujours, architectes-france.com ne transfère aucune donnée personnelle à d'autres acteurs que ceux directement concernés par le projet (architectes, architectes d'intérieur...) et qui appartiennent à son réseau. Nos listes ne sont jamais transmises ou vendues à des partenaires extérieurs, même si ceux-ci appartiennent au domaine de la construction.
Toute modification dans ce domaine ne serait effectuée qu'avec votre consentement.

Je consens à ce que mes données personnelles soient collectées pour permettre à architectes-france de transférer votre projet aux architectes. Seul Architectes-france, ses équipes internes et la maitrise d'oeuvre concernée par le projet y ont accès. Aucune transmission de données à des tiers à l'exclusion de ceux décrits ci dessus n'est réalisée.

Mes données téléphoniques seront uniquement utilisées par Architectes-france.com et les architectes de notre réseau dans le cadre de la qualification et du suivi de mon projet.

Les données sont conservées pendant une durée de 18 mois courant à partir des derniers contacts effectifs entre architectes-france et vous ou architectes-france et un membre de la maitrise d'oeuvre en rapport avec ce projet et qui serait en relation avec architectes-france.

Conformément à la loi « informatique et libertés », vous pouvez exercer votre droit d'accès aux données vous concernant et les faire rectifier en contactant : Architectes-france, 23 avenue du Mirail - parc du Mirail - 33370 Artigues-près Bordeaux. Tél. 05.47.74.51.01 - contact@architectes-france.com